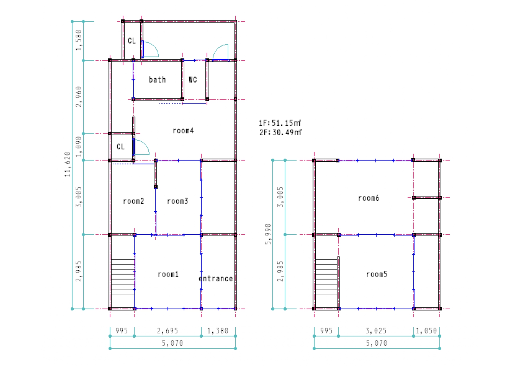
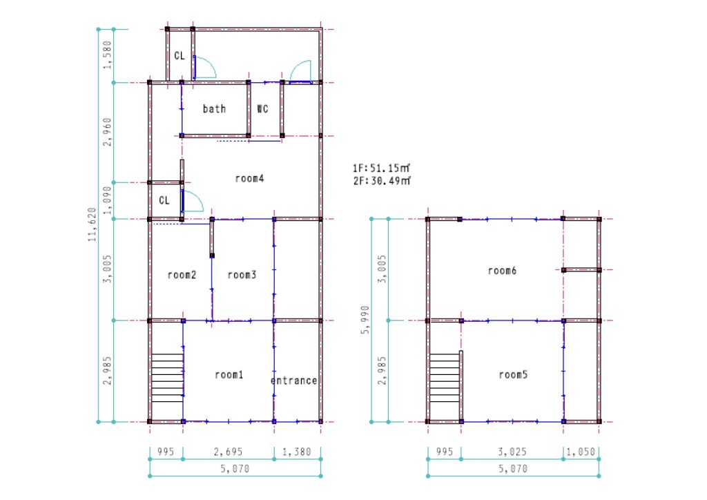
Description
Similar Listings
Suenokuchi-cho Machiya
¥ 58.8M
Contact Nils Wetterlind on WhatsApp +817043076560 or email nils.wetterlind@heritagehomesjapan.com for further details and to set up a viewing. Transportation: & ...
73.37 m2details
Big Nijo Corner Machiya
¥ 69.8M
Guesthouse potential! A rare opportunity to acquire an unusually large original Kyoto Machiya in an excellent location next to Nijo Castle. This 120+ sqm Machiy ...
121.88 m2details
Kawasecho Machiya
¥ 22.8M
Transportation: JR Sanin Main Line “Enmachi” station approx. 12 min walk Keifuku Line “Kitano Hakubaicho” station approx. 13 min walk Building Area: Registered: ...
89.40 m2details




































