Description
Similar Listings
Ebisucho Machiya
¥ 82.8M
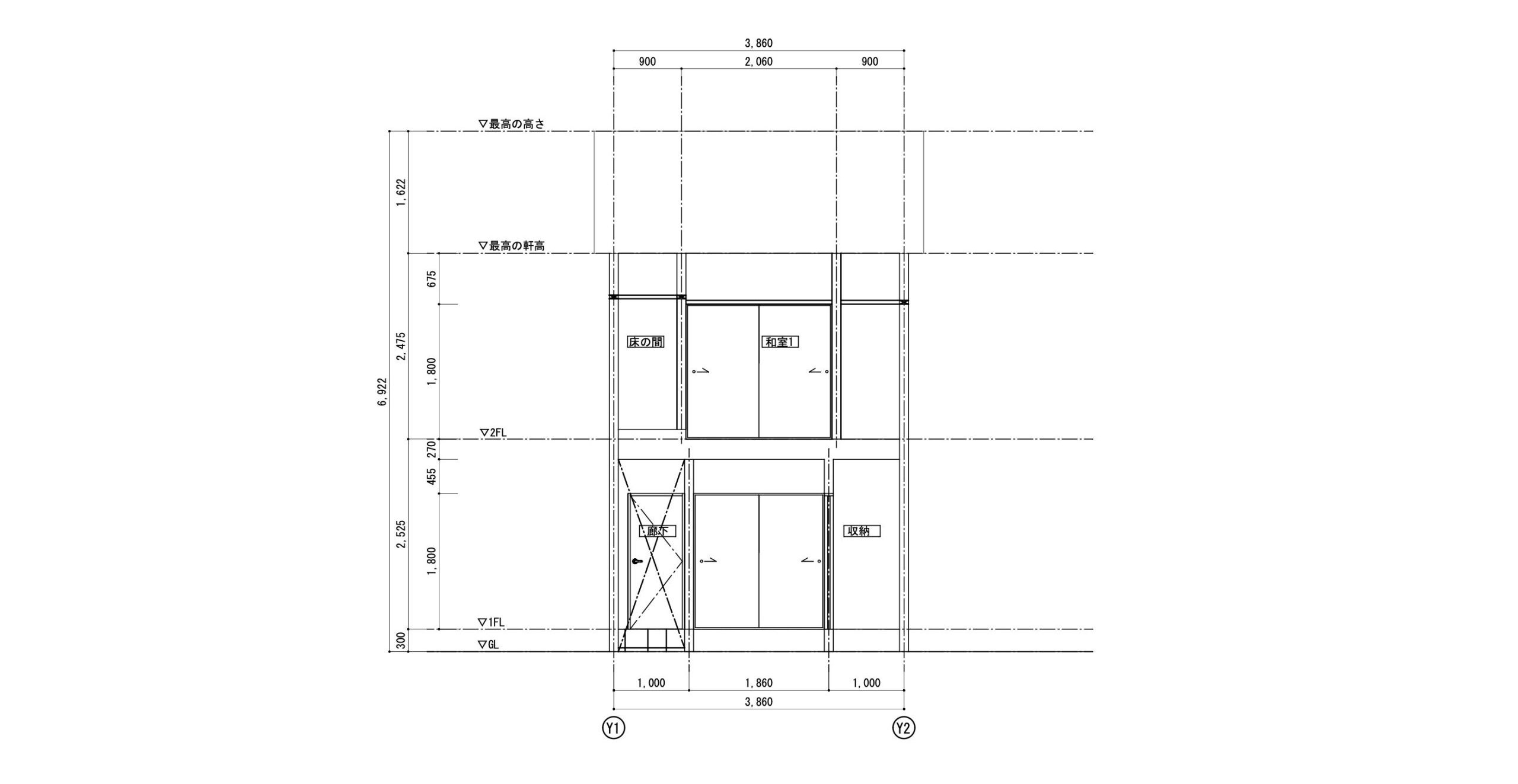
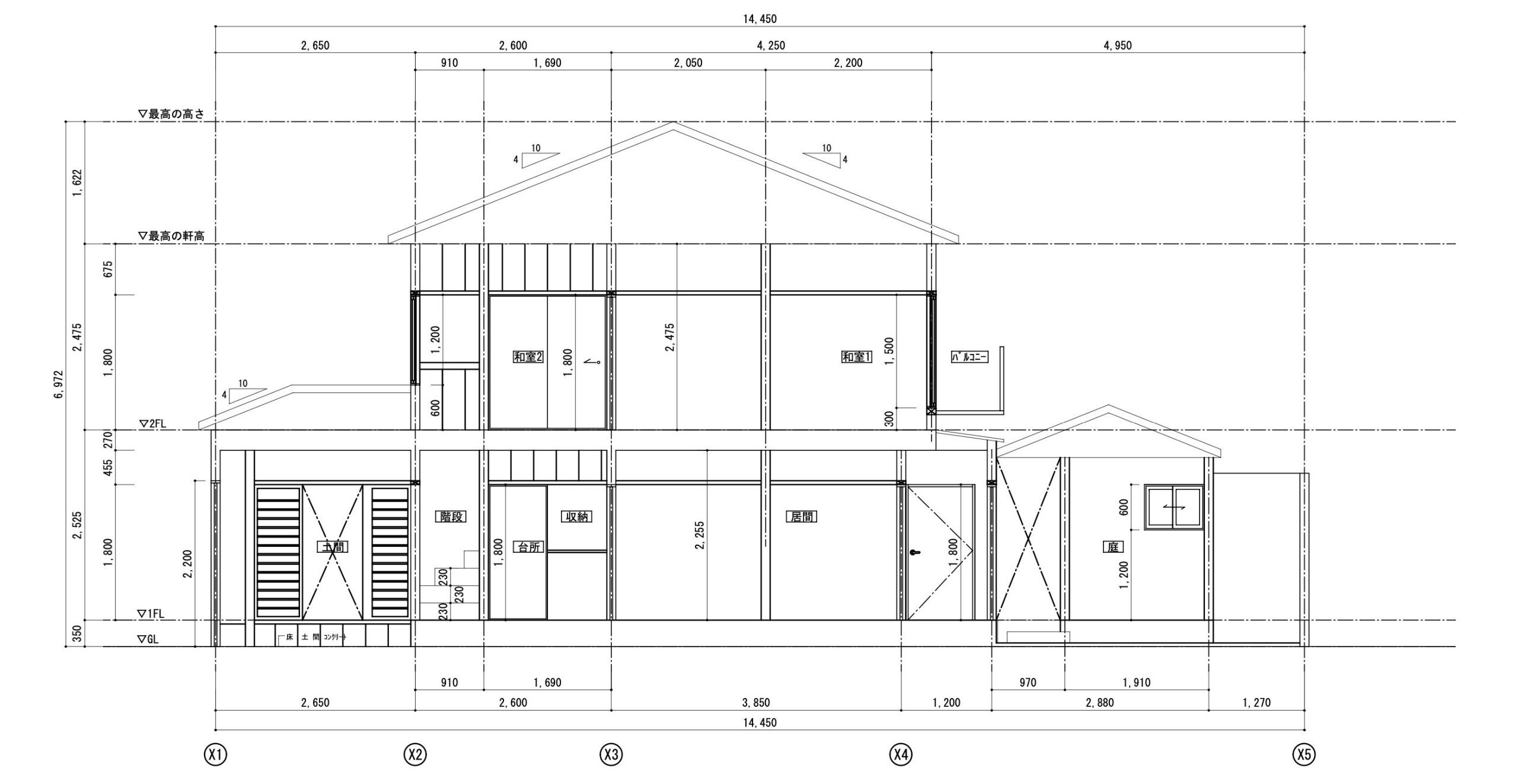
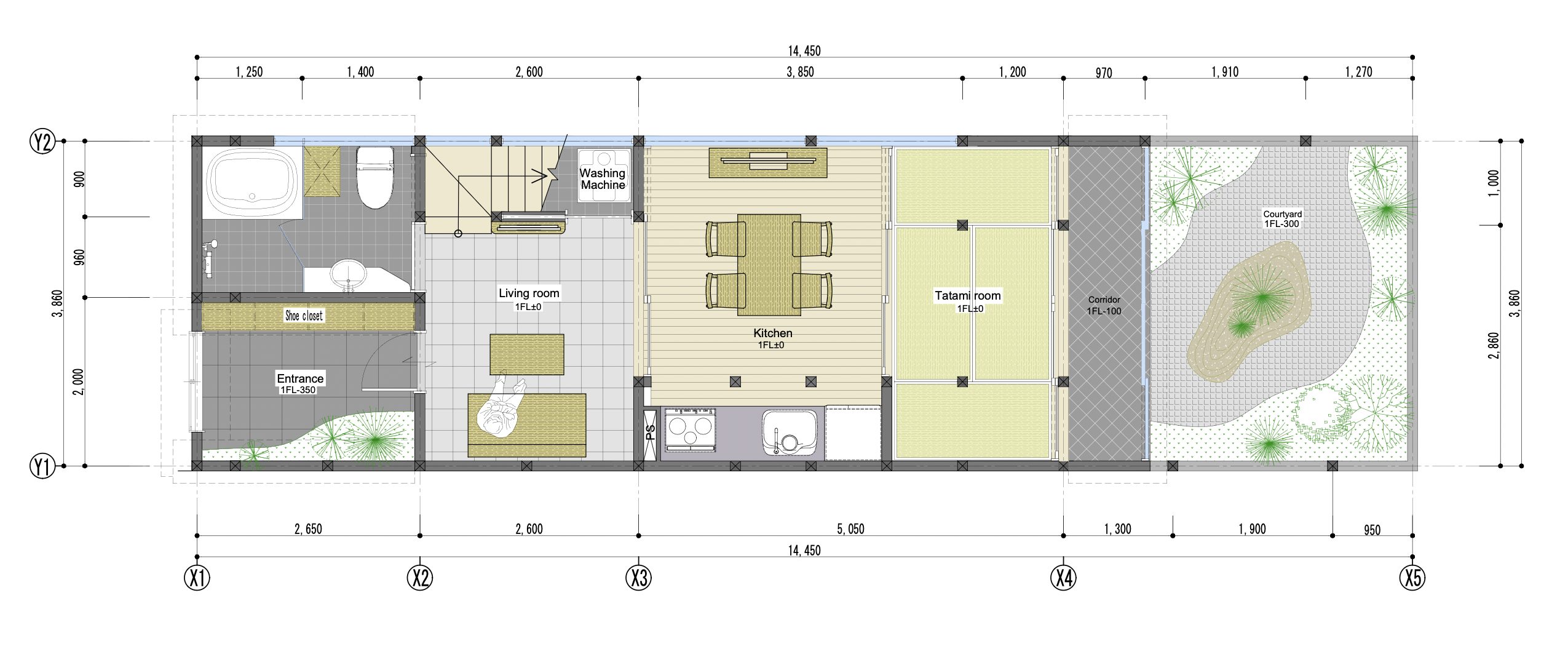
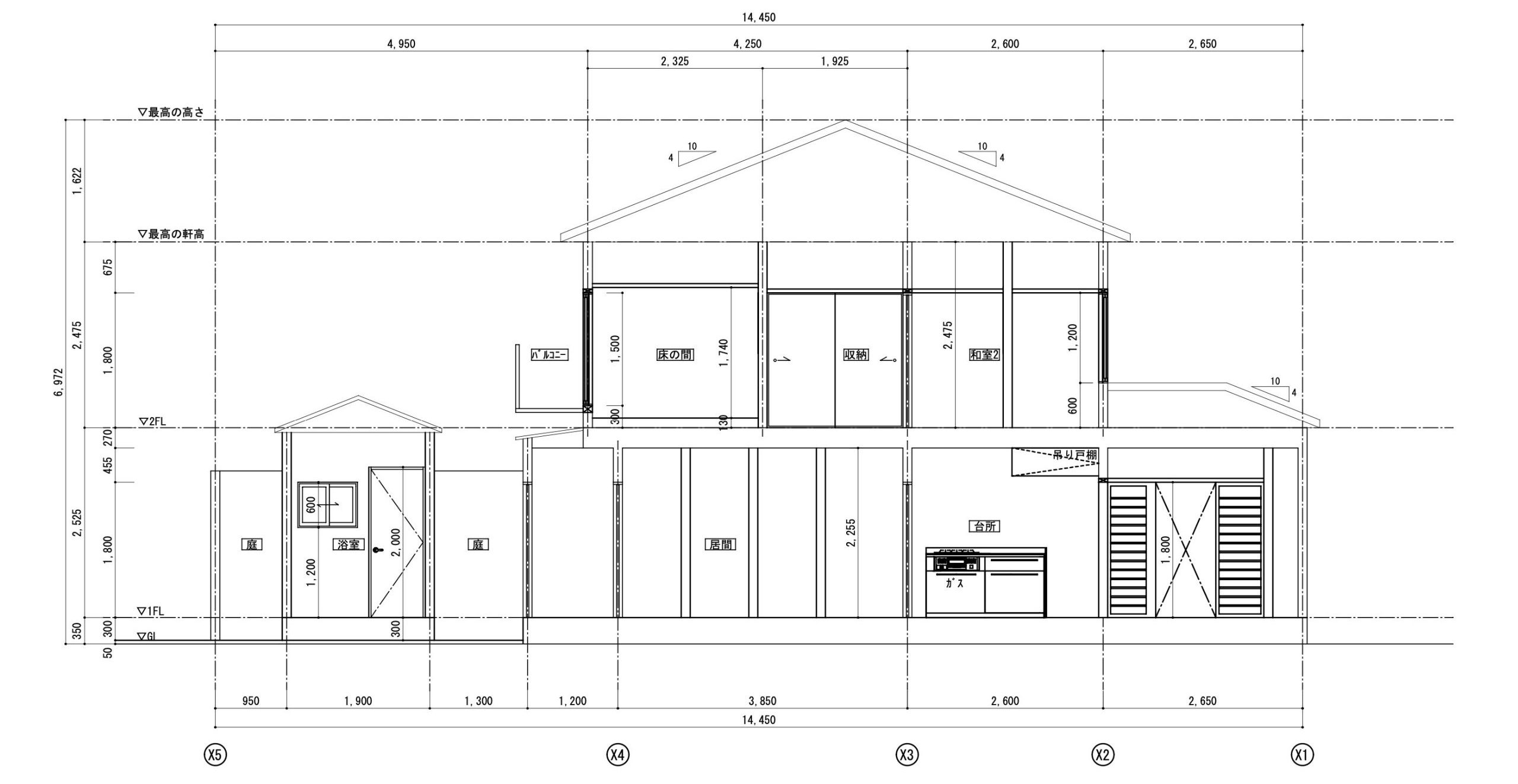
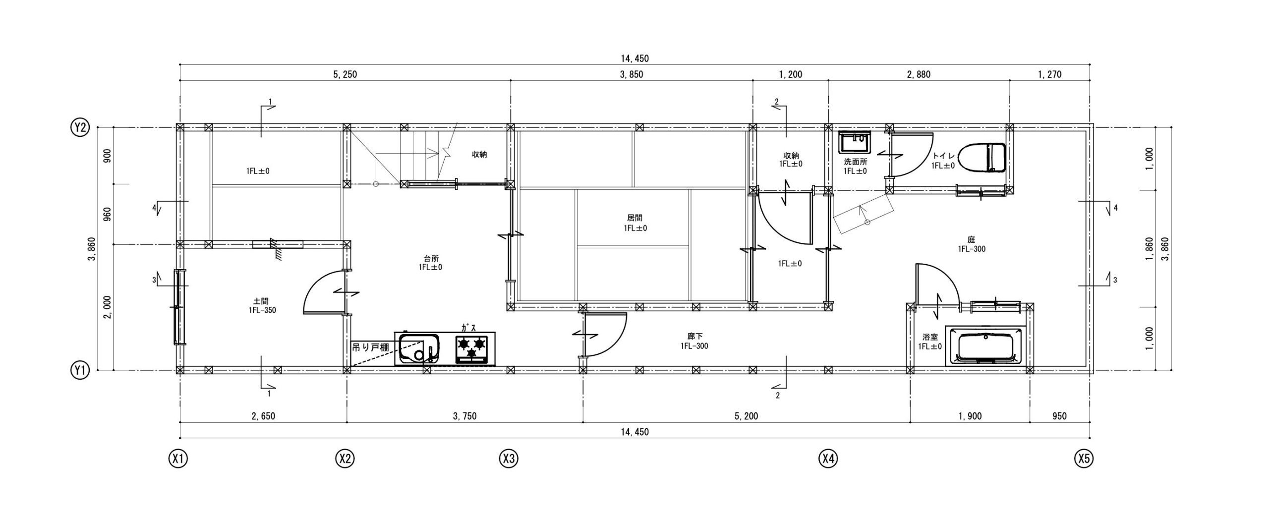
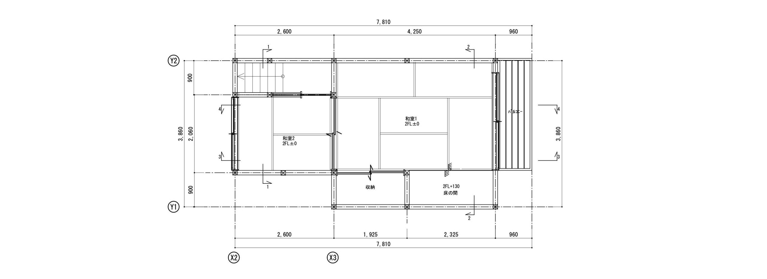
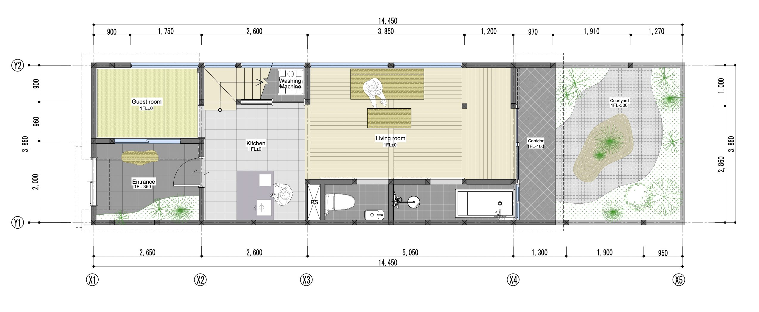
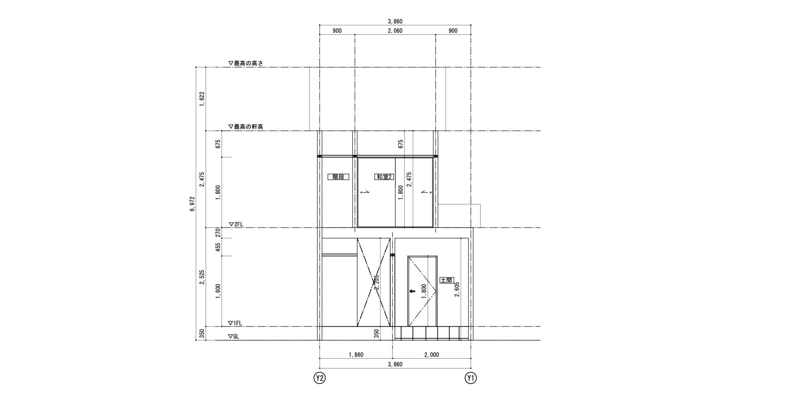
Stunning, 100+ year old Marchant Machiya in historic Nishijin district Very large and beautifully preserved classic Kyoto Marchant Machiya for sale. These types ...
126.17 m2details


















































